Skip to content
紀陽住建

お電話でのお申し込み・お問い合わせ
TEL.0739-24-3275

Menu
  • ホーム
  • 売土地・戸建て
  • 売りマンション
  • 賃貸物件
  • 不動産売買について
  • 会社概要
  • お問い合わせ
Menu

田辺市新庄町【貸事務所】G

【プリント用PDFファイル】
物件名 田辺市新庄町【貸事務所】G
種 別 事務所
所在地 和歌山県田辺市新庄町2345-5 さら梨2階G
交 通 (龍)(明)名喜里バス停まで 徒歩約3分
賃 料 86,000円
管理費
共益費 込み
敷金/礼金/敷引 なし/なし/その他費用欄参照
★敷金・礼金0円!★リフォーム済み★1R貸事務所!約31帖★お客様駐車場無料!★全9室!
【この物件に問い合わせをする】
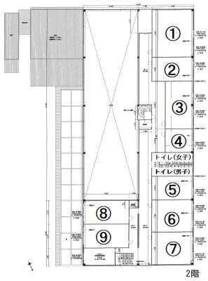
間取り 1R
間取り詳細 1R
取引態様 仲介
専有面積 51.75m²
その他費用 退去時、鍵交換費・ハウスクリーニング費要・クロス張替費要(喫煙の場合)
駐車場 あり 1台3,300円/月 お客様駐車場無料
構 造 鉄骨造亜鉛メッキ鋼板葺2階建
階 数 2階
総戸数 9
空戸数 9
築年月 1986年9月
入居時期 相談
保 険 家財(借家人賠償責任)保険加入要
情報更新日 2025年9月9日
情報有効期限 年月日
設 備 即入居可、事務所可、共同トイレ、共同給湯室、共同喫煙室
備 考 ※家賃保証の加入が必要です(保証会社:アークシステムテクノロジーズ)
※校区:新庄小学校・新庄中学校
※津波災害警戒区域:内(基準水位8.7m)
※土砂災害警戒区域:外
※洪水ハザードマップ:外
※ため池ハザードマップ:外
※埋蔵文化財包蔵地所在地図:外
※大規模盛土造成地マップ:外
※海抜約2.8m
物件コード so-shinjyo-jimu-8-y
[BACK]

住まいのコンテンツ

  • 売土地・戸建て
  • 売りマンション
  • 賃貸物件
  • 不動産売買について
  • 会社概要
  • お問い合わせ

アクセスマップ
<br /> 紀陽住建<br />
©2023 紀陽住建 | Design: Newspaperly WordPress Theme