| 物件名 | 田辺市中芳養【中古戸建】 |
| 種 別 | 戸建て |
| 所在地 | 和歌山県田辺市中芳養字栗野917番4、917番5 |
| 交 通 | (龍)会館前バス停まで徒歩約1分 |
| 価 格 | 3,480万円 |
| 敷地面積(m²) | 325.01m² |
| 敷地面積(坪) | 98.31坪 |
★先客あり☆ラグジュアリーな住宅☆R6年リフォーム済(外壁塗装・エコキュート交換・システムキッチン交換)☆駐車場8台OK(2台用カーポートあり)☆太陽光7キロ設置☆V2H設置☆居住中(引渡しはR8年6月以降)
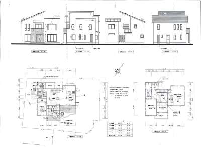
| 間取り | 4LDK+納戸・WIS・WIC・テラス他 |
| 間取り詳細 | 1F:LDK22帖、洋6帖、浴室、洗面脱衣室、トイレ、納戸、WIS、テラス、坪庭
2F:洋10.5帖、洋8.7帖、WIC5帖、畳コーナー5帖、トイレ、吹抜け、ベランダ |
| 取引態様 | 仲介 |
| 建物面積 | 157.18m² (47.54坪)1F:86.64u(26.20坪) 2F:70.54u(21.33坪) |
| 接面道路 | 南西側 県道 幅員約13m 南東側 私道 幅員約4.5m |
| 駐車場 | あり 約8台 |
| 建ぺい率 | 60% |
| 容積率 | 200% |
| 敷地の権利形態 | 所有権 |
| 構 造 | 木造かわら・合金メッキ鋼板葺2階建 |
| 階 数 | 2階 |
| 築年月 | 2009年7月 |
| 地 目 | 宅地 |
| 都市計画 | 準都市計画区域 |
| 用途地域 | ― |
| 現 況 | 居住中 |
| 引 渡 | 相談(R8年6月以降) |
| 法令上の制限 | 景観法、屋外広告物法、宅地造成等工事規制区域 |
| 情報更新日 | 2025年10月20日 |
| 情報有効期限 | 年月日 |
| 設 備 | 個別浄化槽、太陽光、エコキュート、V2H設置 |
| 備 考 | ※校区:中芳養学校(約1080m)・中芳養中学校(約760m)
※埋蔵文化財包蔵地所在地図:外 ※津波災害警戒区域:外 ※土砂災害警戒区域:外 ※洪水ハザードマップ:外 ※ため池ハザードマップ:外 ※大規模盛土造成地マップ:外 ※標高15.6m(地理院地図) |
| 物件コード | k-nakahaya917-4 |























