| 物件名 | 天神崎戸建 |
| 種 別 | 戸建て |
| 所在地 | 和歌山県田辺市天神崎 |
| 交 通 | JR紀伊田辺駅までバス6分 元町バス停まで徒歩11分 |
| 価 格 | 800万円 |
| 敷地面積(m²) | 237.92m² |
| 敷地面積(坪) | 71.97坪 |
大変キレイな民泊営業中の戸建!和風のオシャレな建物で間取り5DK♪道向かいに駐車場敷地付(5台可能)令和6年キッチン・給湯器新品、令和7年、キッチン床リフォーム♪
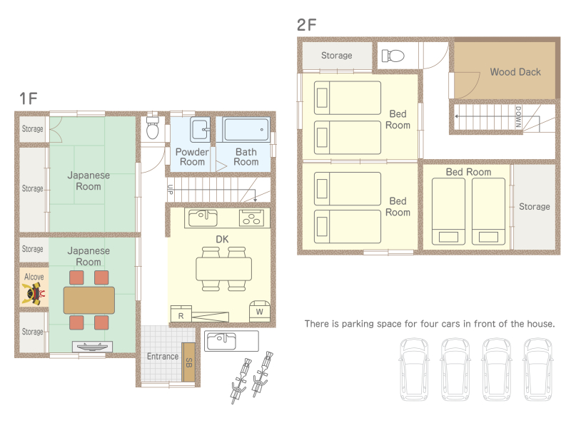
| 間取り | 5DK |
| 取引態様 | 媒介 |
| 建物面積 | 98.05m² |
| 接面道路 | 東側 |
| 駐車場 | あり 道向かい5台 |
| 建ぺい率 | 60% |
| 容積率 | 200% |
| 敷地の権利形態 | 所有権 |
| 構 造 | 木造瓦葺2階建 |
| 階 数 | 2階 |
| 築年月 | 昭和57年10月 |
| 地 目 | 宅地・雑種地 |
| 都市計画 | 非線引き区域 |
| 用途地域 | 第一種住居地域 |
| 地 勢 | 平坦 |
| 現 況 | 民泊営業中 |
| 最適用途 | 居宅 |
| 引 渡 | 要相談 |
| 法令上の制限 | 景観法・宅地造成等規制法 |
| 情報更新日 | 2026年2月20日 |
| 情報有効期限 | 2026年12月30日 |
| 設 備 | 水道:公営 排水:浄化槽 給湯:プロパンガス 電気:関西電力 |
| 備 考 | 民泊営業中・8月末まで予約入っている為、9月以降の引渡し |
| 物件コード | tenj6 |









































