| 物件名 | くろしお店舗 |
| 種 別 | 店舗 |
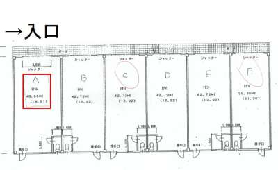
| 所在地 | 和歌山県西牟婁郡上富田町朝来1304-1 くろしお店舗 A号 |
| 交 通 | JR朝来駅より徒歩約4分 |
| 賃 料 | 80,000円 |
| 管理費 | |
| 共益費 | |
| 敷金/礼金/敷引 | 30万円/なし/3ヶ月分 |
★店舗・事務所!★朝来駅まで徒歩約4分!★他、賃料7万円の物件もあり
| 間取り | 1R |
| 間取り詳細 | 1R、トイレ |
| 取引態様 | 仲介 |
| 専有面積 | 48.96m² |
| 駐車場 | あり |
| 構 造 | 鉄骨造スレート葺 |
| 階 数 | 1階/所在階1階 |
| 築年月 | 1998年9月 |
| 入居時期 | 相談 |
| 契約期間 | 制限付き |
| 保 険 | 家財(借家人賠償責任)保険加入要 |
| 情報更新日 | 2026年4月10日 |
| 情報有効期限 | 年月日 |
| 備 考 | ※仲介手数料必要、家財保険必要、※保証会社加入必要(一例 利用料:賃料等に対して77%/初回のみ、WEB口座登録料330円/初回のみ、口座振替手数料440円/月、更新料7,000円/年、その他)
※校区:朝来小学校(約0.7km)・上富田中学校(約1.8km) ※津波災害警戒区域:未指定 ※土砂災害警戒区域:外 ※洪水・浸水想定区域:内(3.0m以上5.0m未満) ※洪水・浸水継続時間:内(12時間未満) |
| 物件コード | te-iwa-kuroshio-a-f |


