| 物件名 | 上富田町南紀の台【中古戸建】 |
| 種 別 | 戸建て |
| 所在地 | 和歌山県西牟婁郡上富田町南紀の台35-24 |
| 交 通 | (明)(コ)南紀の台北バス停まで徒歩約6分 |
| 価 格 | 4,950万円 |
| 敷地面積(m²) | 387.57m² |
| 敷地面積(坪) | 117.23坪 |
★令和4年新築!★長期優良住宅(耐震等級3)★広い敷地(約117坪)★人気の高台(標高約61m)!★駐車スペース4台可!★カーポート2台分!
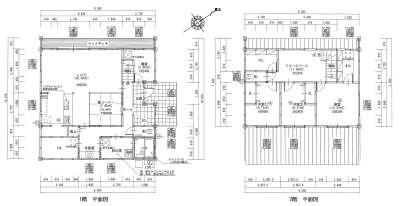
| 間取り | 4LDK+色々! |
| 間取り詳細 | 1階:LDK23帖+畳コーナー4.5帖+パントリー、書斎3.5帖、FCL3.5帖、洗面室、脱衣室、UB、トイレ、SCL
2階:寝室8帖+WIC3帖、子供室5.5帖(CL)、子供室5.5帖(CL)、FCL3帖、フリースペース7帖、トイレ |
| 取引態様 | 仲介 |
| 建物面積 | 146.15m² (44.21坪) 1F:85.29u(25.80坪) 2F:60.86u(18.41坪) |
| 接面道路 | 西側:幅員約4.5mの公道 |
| 駐車場 | あり 4台 |
| 建ぺい率 | 60% |
| 容積率 | 200% |
| 敷地の権利形態 | 所有権 |
| 構 造 | 木造合金メッキ鋼板葺2階建 |
| 階 数 | 2階 |
| 築年月 | 2022年12月 |
| 地 目 | 宅地 |
| 都市計画 | 非線引き区域 |
| 用途地域 | 無指定 |
| 引 渡 | 相談 |
| 法令上の制限 | 景観法、屋外広告物法、宅地造成等工事規制区域内 |
| 情報更新日 | 2025年11月27日 |
| 情報有効期限 | 年月日 |
| 備 考 | ※
※校区:朝来小学校・上富田中学校 ※津波災害警戒区域:未指定 ※土砂災害警戒区域:外 ※河川浸水想定区域:外 ※ため池ハザードマップ:外 ※大規模盛土造成地マップ:内 ※標高約61m(地理院地図) |
| 物件コード | sumi-k-nankinodai1805-424-426-y |

























